| Лодка
для больших водохранилищ,
КиЯ 5(129)87 |

Разрабатывая чертежи этой моторной
лодки, я рассчитывал на то, чтобы построить ее мог любой человек, обладающий
небольшими навыками обращения со столярными инструментами. Кроме того,
лодка предназначалась для морских заливов и крупных водохранилищ, поэтому
она должна была обладать повышенной мореходностью - способностью идти по
волнению, не снижая скорости, при этом не забрызгиваться и не заливаться
гребнями высокой волны.
Каждый, кто ходил на лодке
в большом водохранилище, почувствовал, что условия плавания здесь более
сложные, чем на реке. Острый нос нередко втыкается в волну, вода заливает
палубу. А стоит только уменьшить ход, как полная широкая корма всплывает,
и нос опускается еще ниже. На попутной волне катер с традиционными обводами,
догнав волну, входит в нее узким носом и замедляет ход. Следующая волна
поднимает полную широкую корму, нос начинает буквально "вспахивать" воду,
которая может даже выкатиться на палубу и залить катер. Если рулевой при
этом оплошает, не сдержит вовремя катер, то гребень волны может забросить
корму в сторону - повернуть катер вокруг "застрявшего" в воде носа. Катер
становится бортом к волне.
Частицы воды в профиле волны
совершают вращательное движение по круговым орбитам, причем на гребне направление
их движения совпадает с направлением бега волн. На подошве волны частицы
воды движутся в обратную сторону. По этой причине на вставший бортом к
волне катер действуют гидродинамические силы, стремящиеся его перевернуть
Эти силы суммируются с силами плавучести, с давлением ветра на корпус и
надстройку и с силами инерции, если катер двигался до этого момента с хорошей
скоростью. В результате катер с острым носом может опрокинуться, часто
неожиданно для его водителя и пассажиров. Оказавшись посреди водохранилища,
попавшим в беду рассчитывать на скорую помощь в свежую погоду не приходится,
и экипаж катера обречен бороться за спасение самостоятельно
Предлагаемая конструкция
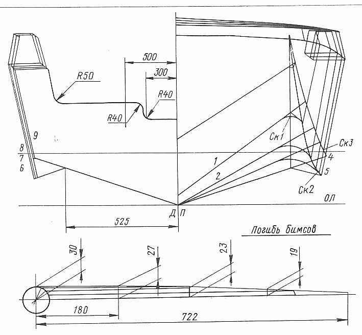
трехкилевой мотолодки лишена упомянутых недостатков. Нос мотолодки широкий,
на корпусе имеются боковые наделки - дополнительные объемы плавучести,
препятствующие большому крену. Сохранению остойчивости на крене способствует
большая (до 18°) килеватость днища. Она также смягчает удары корпуса лодки
о волны, делает плавание более комфортабельным. Большая килеватость простирается
до транца, поэтому корма на волне не всплывает так резко, как у плоскодонной
лодки. Испытав эту лодку в Финском заливе, я убедился, что она легко идет
по волне как на полном, так и на малом ходу.
Волна иногда достигала 2,5
метров высоты!
Корпус лодки можно изготовить
деревянной конструкции с обшивкой из фанеры, как это показано на чертежах.
Некоторые судостроители-любители применили для обшивки стеклотекстолит,
строили также эту лодку с набором из металлического угольника с обшивкой
из дюралюминия, клепаной конструкции.
При изготовлении мотолодки
из дерева детали собирают с применением водостойкого клея. Наружную поверхность
фанерной обшивки рекомендуется тщательно прошкурить и оклеить одним-двумя
слоями стеклоткани на эпоксидном или полиэфирном связующем. Толщина наружной
обшивки из фанеры на днище и палубе - 5 мм, на бортах -4 мм. Технологические
процессы изготовления деталей и сборки корпуса подробно описаны в книге
"15 проектов судов для любительской постройки", 1985 г Л-д, "Судостроение".
Окрашивать мотолодку лучше
всего эпоксидными эмалями, но можно применять и пентафталевые эмали.
В транце надо закрепить
втулку с резьбовой пробкой, которую на берегу отвинчивают для слива воды,
попавшей в корпус.
Эксплуатировать мотолодку
необходимо только с дистанционным управлением моторами. При выходе в свежую
погоду, экипаж обязан надеть спасательные жилеты, обязательно с твердым
пенопластовым наполнителем.
В.АЛЕКСЕЕВ инженер-кораблестроитель
![]() |
![]() |
![]() |
![]() |
